La torre genera diversidad de planos en la contrafachada. Busca privilegiar la iluminación natural y las vistas lejanas.
Una torre de nueve pisos y dos niveles de cocheras en un terreno de perímetro entre medianeras de 10x50m. Su nombre hace referencia a su ubicación: la arbolada Avenida Sarmiento, una de las principales arterias de la ciudad de Resistencia.
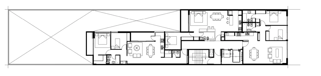
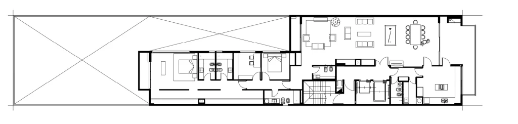
Vista desde la fachada la obra aparenta ser un volúmen único, sólido e imponente. Pero al interior presenta una apertura volumétrica que genera una diversidad de planos de contrafachadas. Así logra una gran entrada de luz natural y vistas panorámicas a la ciudad en cada ambiente.
El hall de acceso se proyectó en doble altura. La terminación exterior del edificio, con revestimiento tipo Tarquini o similar, se integra con el entorno urbano.
En cuanto al diseño del edificio, – “UNO BOULEVARD” – se adapta transformando plantas en espacios personalizados que se ajustan a las necesidades del cliente.
La apertura volumétrica del edificio permite la entrada de luz natural, la ventilación cruzada y panorámicas del entorno. Las unidades funcionales, diseñadas con enfoque en la comodidad y la eficiencia, se convierten en refugios urbanos que acogen a sus habitantes. El concepto de espacialidad impregna cada rincón, evitando lugares acumulativos en favor de una sustentabilidad funcional. Cada detalle, desde la disposición de los espacios hasta la elección de los materiales, se alinea con esta filosofía, un edificio que respira en armonía con su entorno.
En resumen, este proyecto arquitectónico no es solo un edificio, es una obra de arte que fusiona la técnica y el original diseño para crear un icono en el horizonte de la ciudad de Resistencia. Es un tributo a la creatividad, un testimonio de la capacidad del hombre para transformar su entorno y dejar una marca indeleble en el paisaje urbano.



