Desarrolla un basamento de cocheras revestido por vegetación, recuperando una de las características de esa icónica esquina.
El proyecto tiene dos grandes fortalezas que se aprovecharon proyectualmente, ubicación en esquina y optimas orientación en las fachadas principales, sureste y noreste. La implantación en perímetro libre le otorga ventilación e iluminación natural en todos los ambientes, y amplitud a través de los frentes integrales vidriados de piso a techo.
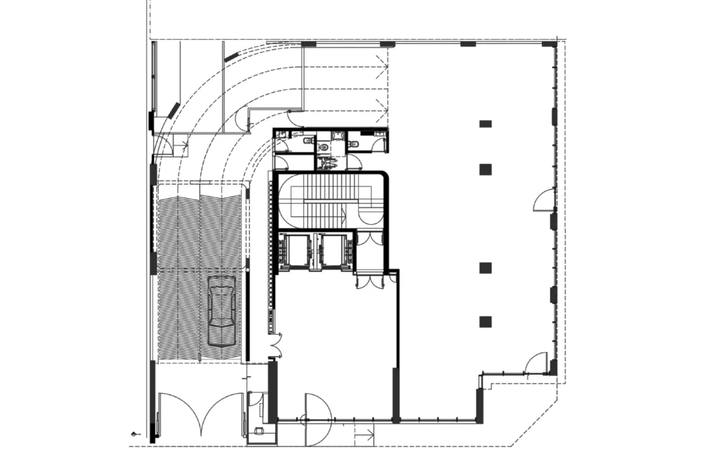
La ubicación de las cocheras responde a la situación de napas altas características de la topografía de la ciudad de Resistencia. Esta situación condicionó la localización de las cocheras en subsuelos, las que se ubicaron en 4 niveles de basamento y se lo convirtió en un elemento de fuertes lineas horizontales de vigas invertidas de hormigón visto y un jardín vertical de cerramiento. De esta forma se volvía a recaracterizar esa esquina, al utilizar la vegetación vertical como barrera visual de fachada verde. Todo el proyecto se destaca por la calidad de materiales nobles de bajo mantenimiento y confort.
Las unidades van desde los 45 m2 a 200 m2 en dos, tres y cuatro ambientes se logra de esta manera, un producto competitivo, con una imagen icónica para la ciudad y un compromiso de sustentabilidad en las pautas de diseño.
Se diseñó la estructura de manera tal que una vez finalizada recibiera las carpinterías, logrando en dos ítems resolver toda la envolvente. Los tabiques de hormigón reemplazan la mampostería del cerramiento exterior. La envolvente se completa con grandes carpinterías de aluminio y doble vidriado hermético con vidrio selectivos de control solar y baja emisividad.
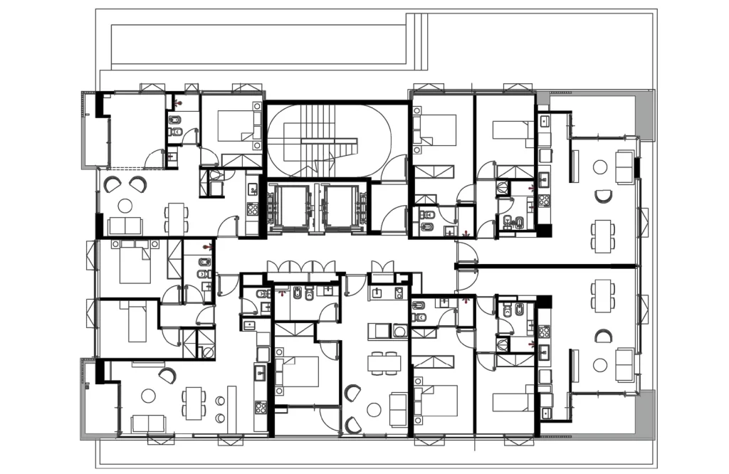
La planta tipo en el piso 6 esta compuesta de cinco unidades funcionales, y a medida que sube en niveles se van fusionando en nuevas tipologías de más ambientes hasta terminar en dos semipisos de mayores prestaciones en los últimos cuatro niveles.


